What is 'Vision Heartland'?
'Vision Heartland' is our initiative to update and refresh our current facility in order to increase our effectiveness in outreach, discipleship, and community building.
Our original building was completed in 1987 and our new addition was completed in 2002. A building refresh allows us to preform general upkeep throughout the facility and shape our space to support our mission to invite others to come to Jesus, follow him with joy, and serve him with passion.
Our original building was completed in 1987 and our new addition was completed in 2002. A building refresh allows us to preform general upkeep throughout the facility and shape our space to support our mission to invite others to come to Jesus, follow him with joy, and serve him with passion.
God is at Work at heartland
Did you know that Heartland has expanded in recent years? We have seen a 6% increase per year in our overall Heartland attendance since 2019. During the school year we serve an average of 473 in person people per week between our Sunday morning services and Wednesday night activities. Our three large community outreach events during the year (Fall Celebration, Easter Extravaganza, and VBS) bring in another 1,200 people through our doors every year, not to mention our expanding online reach. In 2021, our Youtube views skyrocketed to a total of 29.7k views!
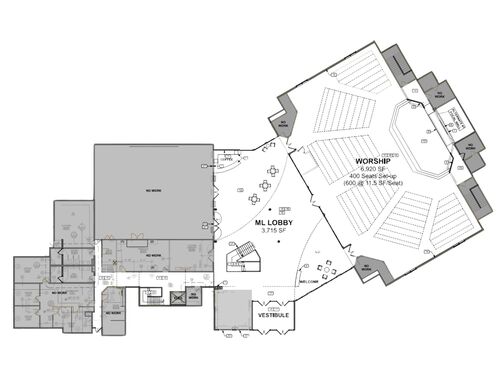
⬇️The downstairs remodel has been completed and we will soon be beginning work on phase 2⬇️
Now we want to challenge you to help us finish the job with our upstairs remodel. We are intentionally designing our building to facilitate fellowship and connection. Not only will this help our kids, youth, and young families connect, it will help us to warmly welcome the greater Heartland-area of 80,000 souls within a fifteen-mile radius of our church. We believe Christ is returning soon! The time to reach them is now!
Heartland family, the church of Jesus Christ is the last bastion of truth in our culture, a beacon of goodness and freedom in a dark world. Will you help us provide our community with an updated facility that offers friendship, connection, and most of all HOPE in the midst of a hopeless world! Will you help us?
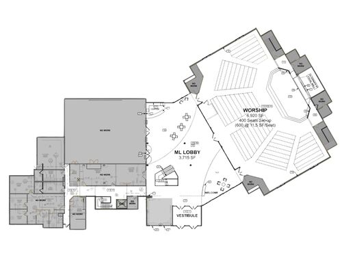
⬇️The downstairs remodel has been completed and we will soon be beginning work on phase 2⬇️
Now we want to challenge you to help us finish the job with our upstairs remodel. We are intentionally designing our building to facilitate fellowship and connection. Not only will this help our kids, youth, and young families connect, it will help us to warmly welcome the greater Heartland-area of 80,000 souls within a fifteen-mile radius of our church. We believe Christ is returning soon! The time to reach them is now!
Heartland family, the church of Jesus Christ is the last bastion of truth in our culture, a beacon of goodness and freedom in a dark world. Will you help us provide our community with an updated facility that offers friendship, connection, and most of all HOPE in the midst of a hopeless world! Will you help us?
Phases
Phase 1 - Completed!
Children’s area
New Youth Room Entry
Remainder of rooms downstairs paint & carpet
Fellowship Hall paint & carpet
Offices, Library, & Cedar Room paint & carpet
Phase 2
Remodeled Foyer and Upstairs Hallways
Refreshed sanctuary with new paint and carpet
New Chairs
Finish Up
Youth Room & Upstairs bathroom renovations will be finished if funds allow
Children’s area
New Youth Room Entry
Remainder of rooms downstairs paint & carpet
Fellowship Hall paint & carpet
Offices, Library, & Cedar Room paint & carpet
Phase 2
Remodeled Foyer and Upstairs Hallways
Refreshed sanctuary with new paint and carpet
New Chairs
Finish Up
Youth Room & Upstairs bathroom renovations will be finished if funds allow
Vision Heartland remodel




